ubs universitária da uscs

UBS Universitária da Universidade Municipal de São Caetano do Sul – USCS

Programa de medicina básica em parceira com a Prefeitura Municipal de Barueri
Batizada de UBS-Escola Helena Franco Munhoz, a inauguração ocorreu em 23 de dezembro de 2024. Porém, funcionou pouco tempo como uma UBS, mudando de uso cinco meses depois.
Atualmente, o edifício abriga o Ciedi (Centro de Inteligência Epidemiológica e Doenças Infecciosas) Helena Franco Munhoz, oferecendo atendimento especializado nas áreas de infectologia, nutrição, psicologia, odontologia, enfermagem e serviço social. A mudança de uso ocorreu em 19 de maio de 2025.

 

acolhimento, saúde preventiva, educação e pesquisa em um só lugar

 

As Unidades Básicas de Saúdes (UBS) são equipamentos fundamentais para o bem-estar e para a qualidade de vida nas cidades. Elas desempenham importante papel na educação sanitária, na promoção da saúde preventiva, na realização de diagnóstico precoce e no acompanhamento do tratamento dos pacientes. Por serem unidades de atenção primária e estruturadas em rede, guardam uma relação mais estreita com os bairros e as comunidades; estão – ou deveriam estar – mais próximas do cotidiano das pessoas.

 

Porém, a participação de estudantes da área da saúde nas atividades relacionadas às UBS é restrita, uma vez que que os estágios e residências se dão no âmbito, principalmente, dos Hospitais Universitários.

 

Dessa forma, a criação de uma UBS Universitária é um ato de inovação. Representa uma contribuição nas diferentes formas de como a medicina e a atenção hospitalar são abordados nas universidades, em seus diferentes cursos na área da saúde. Ação que proporcionará uma série de benefícios tanto para a comunidade acadêmica quanto para a população local atendida.

 

A UBS Universitária é uma parceria entre a USCS – Universidade Municipal de São Caetano do Sul e a Prefeitura Municipal de São Caetano do Sul. Tem como objetivo a integração do ensino, da pesquisa e da extensão às práticas da atenção primária à saúde.

 

Em primeiro lugar, a UBS universitária é um ambiente propício para a formação de estudantes das diversas áreas da saúde, como medicina, enfermagem, odontologia, fisioterapia e assistência social. Os estudantes têm a oportunidade de vivenciar a prática clínica desde os estágios iniciais de sua formação, o que proporciona uma aprendizagem socialmente contextualizada. A teoria se entrelaça com a prática, preparando os futuros profissionais para os desafios reais do cotidiano das comunidades.

 

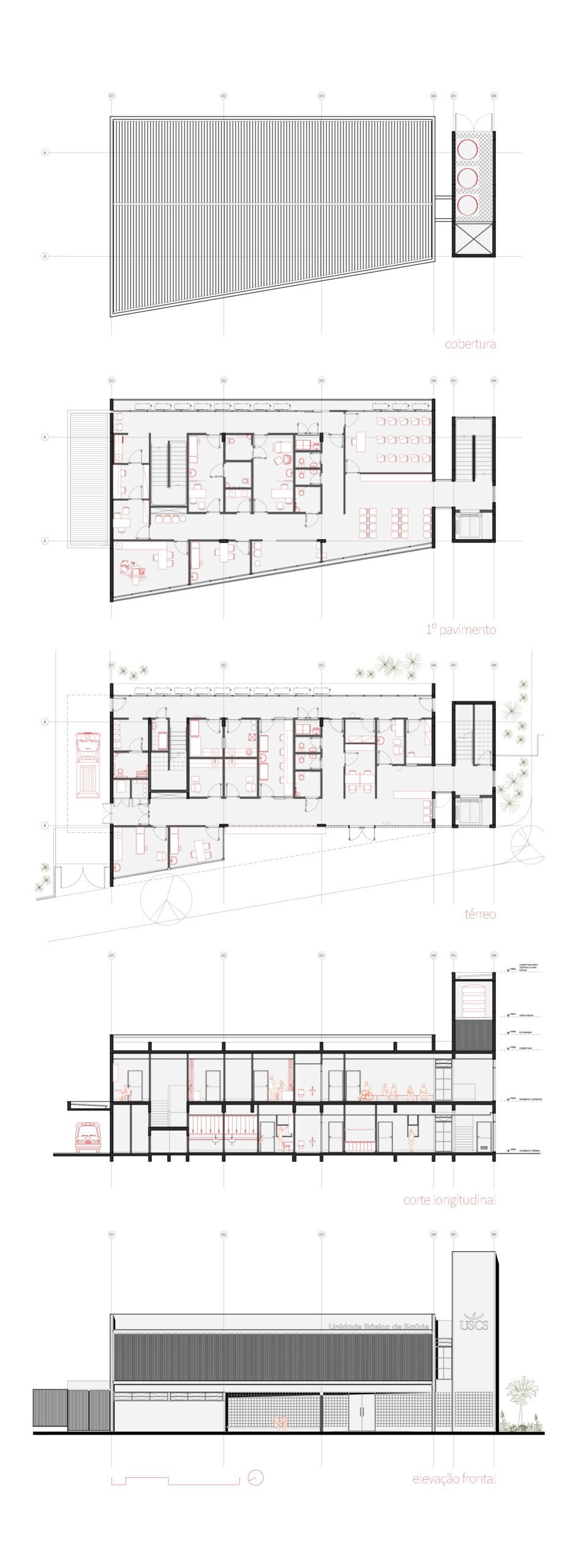
A unidade foi construída junto ao Campus Centro da USCS. Possui a capacidade de realizar, em média, mais de 6.000 atendimentos por mês. Terá serviços para curativos e pequenos procedimentos, de imunização, de medicação e hidratação, atendimento odontológico, atendimento pediátrico, atendimento ginecológico e atendimento adulto e geriátrico.

 

Totalmente acessível, a UBS segue todas as normas e padrões de qualidade exigidas pelos órgãos reguladores competentes. Oferecerá condições adequadas de trabalho, com consultórios maiores para que os estudantes possam participar dos atendimentos e procedimentos sem problemas de espaço, um sistema de acesso e circulação independente para que possam tornar os processos mais eficientes e uma sala de aula dedicada, onde os estudantes receberão treinamento. Sala essa que pode ser convertida em um pequeno auditório para palestras e aulas para a população.

 

Sua composição formal e espacial é resultado de estratégias projetuais pensadas para responder a determinadas questões, sendo:

 

1_ Implantação que mantivesse uma relação direta com a cidade, evitando muros e gradis;

 

2_ Afastamento das superfícies do edifício existente, garantindo iluminação e ventilação adequados para ambas as construções;

 

3_ Criação de um alargamento da calçada e de um trecho sombreado no volume do pavimento térreo, anterior a entrada principal, servindo como espaço de transição e de permanência para as pessoas;

 

4_ Destacamento da circulação vertical dos pacientes (escada e elevador), propiciando uma melhor organização dos espaços técnicos (casa de máquinas e reservatórios) por meio de sua verticalização.

 

A organização dos espaços internos foi definida a partir da criação de dois eixos de circulação paralelos, no sentido longitudinal, permitindo uma separação mais eficiente dos acessos e fluxos dos pacientes e dos colaboradores.

 

Para contribuir com a melhora da experiência dos pacientes, o projeto prevê uma relação direta entre as esperas e os eixos de circulação com o meio externo. As esperas são espaços onde ocorrem grande aglomeração de pessoas e, muitas vezes, é onde os pacientes passam a maior parte do tempo de suas jornadas de atendimento. Nesse sentido, pensou-se em propiciar a esses espaços, através de amplas janelas e superfícies translúcidas, luz natural abundante e a possibilidade de avistar a paisagem.

 

áreas

Área do terreno: 542,20 m²
Área construída: 692,11 m²
Porte de atendimento: UBS porte 1 / uma Equipe de Saúde da Família (eSF)
Capacidade para até 6.000 atendimentos mensais
Custo: R$ 6,2 milhões

ficha técnica

Projeto: UBS Universitária da USCS
Local: São Caetano do Sul, SP
Data do projeto: 2022
Data da conclusão da obra: 2024

clientes

USCS – Universidade Municipal de São Caetano do Sul – USCS
Prefeitura Municipal de São Caetano do Sul

arquitetura

eam + Figueroa AA

autores

Erick Vicente
Mario Figueroa
Gustavo Bondezan
Daniel Maioli

colaboradores

Camila Rocco
Carolina Caldeira
Pedro Paes

levantamento planialtimétrico e sondagem do solo

MSL Sondagem
Civil Kamilla Morales Coelho

projeto de estrutura e fundações

Baraúna Estruturas
Cladilson Nardino

projeto de instalações

Wolf Engenharia
Robson Barbosa

prevenção e combate a incêndios

Ana Paula de Oliveira Flores

fotos

Divulgação Prefeitura de São Caetano

fornecedores

NEOREX
Tarkett
Saint-Gobain
Sulmetais
Rays Elevadores
Tramontina
Health Móveis
TTS do Brasil

 

notícias e imprensa

São Caetano anuncia UBS Universitária e nova Clínica Odontológica no Centro. Veja vídeos

 

Prefeitura de São Caetano e USCS inauguram UBS-Escola no Centro

 

São Caetano terá UBS Universitária e novo Centro Odontológico da USCS

 

São Caetano inaugura Centro de Inteligência Epidemiológica e Doenças Infecciosas

 

 

 

 

 

#arquiteturaparasaude #arquiteturahospitalar #ubs #arquiteturacontemporanea #healthcaredesign #healthcarearchitecture #primarycaredesign #brazilianarchitecture
Data:
Voltar ao topo