oral clinic osasco

oral clinic implantes

Clínica odontológica especializada em implantes e reabilitação oral. Possui quatro consultórios odontológicos e RX panorâmico. Capacidade de aproximadamente 650 atendimentos por mês.
palavras-chave: arquitetura hospitalar; arquitetura para a saúde; clínica odontológica; arquitetura sustentável; construção industrializada; arquitectura hospitalaria; healthcare design

beleza, organização e qualidade no atendimento

A construção da nova sede da Oral Clinic Implantes, empresa de saúde bucal baseada na cidade de Osasco, SP, teve como premissa a requalificação de uma construção existente, que estivesse em local estratégico, por meio de um projeto pautado na redução do impacto ambiental, na eficiência operacional, na segurança biológica e no conforto físico e psicológico dos pacientes.

 

O projeto considerou três questões principais:

 

1_ demolir pouco, aproveitando o máximo das estruturas existentes para reduzir o custo de execução e a produção de resíduos durante as obras;

 

2_ utilizar sistemas construtivos industrializados que dispensassem o uso de madeira e água e que tivessem pouco ou quase nenhum desperdício de material;

 

3_ incorporar estratégias e tecnologias de redução do consumo de energia, diminuindo, consequentemente, o custo operacional ao longo do tempo.

 

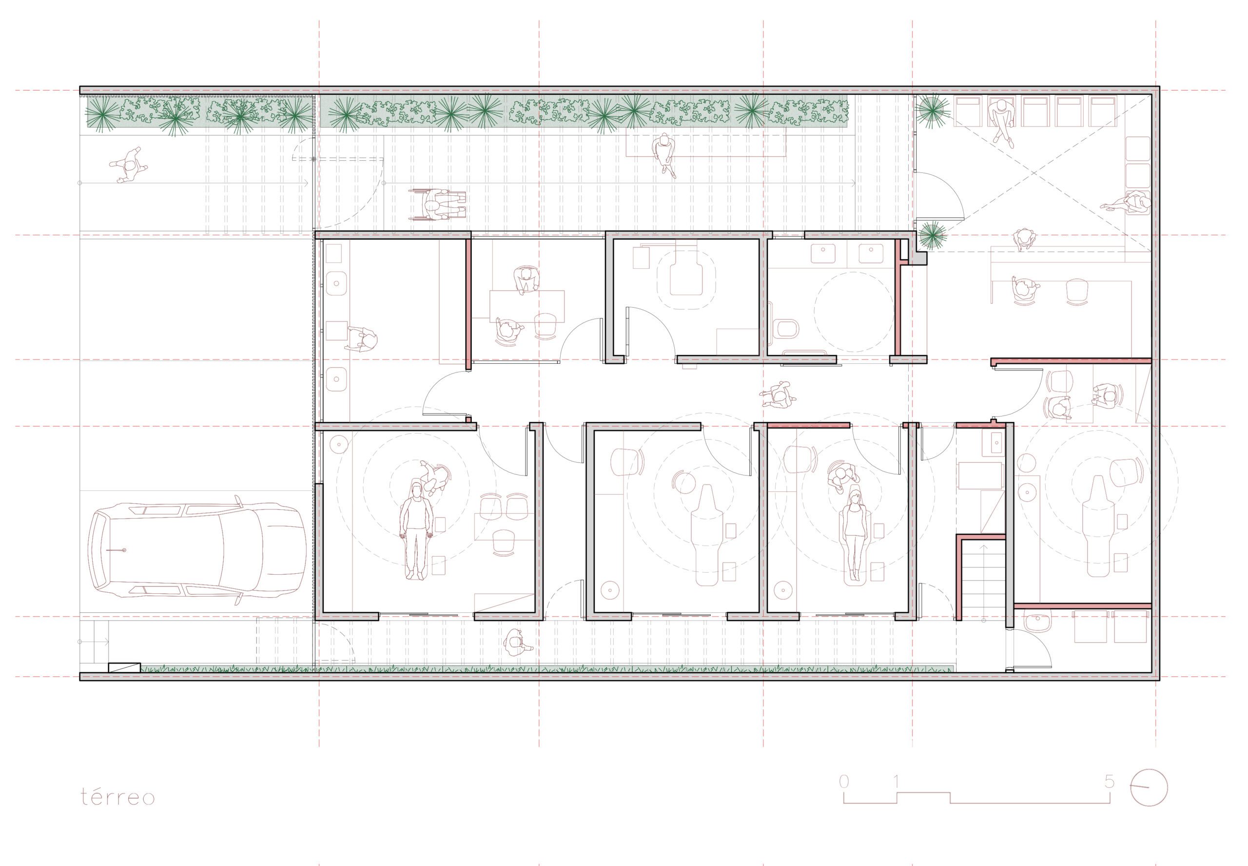
Outro desafio foi atender aos requisitos de acessibilidade, uma vez que a cota do térreo estava 94 cm acima da cota do passeio, no ponto mais baixo da testada frontal.

 

Dessa forma, e para arranjar melhor os fluxos, foi proposto uma organização inusitada: no térreo, ao invés de criar a recepção e a espera junto à rua, optou-se por posicioná-las nos fundos, deixando os consultórios e os ambientes de apoio mais à frente. Essa decisão possibilitou o desenho de uma rampa de inclinação suave em uma das laterais, da frente aos fundos, onde anteriormente ocorria a entrada de veículos para a garagem. Esse espaço, destinado ao acesso dos pacientes, foi pensado para ser uma transição entre o exterior e o interior, ladeado por um jardim, com pé-direito alto e cobertura translúcida, cuja estrutura de sustentação cria um jogo de luz e sombra. A recepção e a espera, com pé-direito duplo, se sucedem ao espaço de transição, dando continuidade às experiências entre corpo e espaço, da entrada até o balcão de atendimento.

 

O acesso de colaboradores, suprimentos e saída de resíduos ocorre por outro corredor, na lateral oposta, também protegido por cobertura translúcida e estrutura pergolada.

 

As coberturas translúcidas e os portões vazados permitem iluminação e ventilação naturais indiretas para quase todos os ambientes internos. Divisórias e portas de vidro possibilitam que a luz se espalhe pelas salas e corredores, diminuindo a necessidade da iluminação artificial e possibilitando que os pacientes e colaboradores acompanhem o passar do dia, de qualquer lugar que estejam.

 

A criação dos dois acessos independentes garante a separação dos fluxos do público e de serviços. Diferente do que acontecia na antiga sede, os pacientes não veem mais a chegada dos dentistas, a distribuição dos suprimentos e a saída do lixo, tornando a operação mais eficiente e melhorando a experiência do paciente.

 

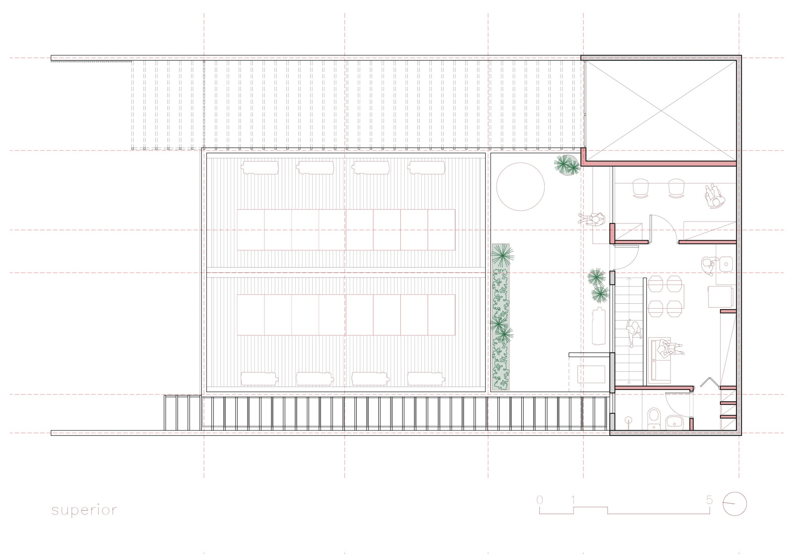
O pavimento superior abriga a copa, o almoxarifado, o vestiário e a administração. A área técnica descoberta foi desenhada para ser também um solário, aumentando o espaço de descanso e convivência dos colaboradores.

 

O projeto previu, após a execução das paredes perimetrais, a utilização de sistemas de construção a seco para as coberturas e divisórias internas, favorecendo o faseamento da obra e a redução do consumo de água e da geração de resíduos. A edificação é dotada de geração de energia solar on-grid e sistema de ar-condicionado com autonomia para cada ambiente, com acionamento independente, uma vez que alguns dos espaços não necessitariam de climatização constante, reduzindo assim o consumo de energia.

 

áreas

Área do terreno: 226,52 m²
Área construída: 153,95 m²

 

ficha técnica:

 

Projeto: Oral Clinic Osasco

Local: Osasco/SP

Data do projeto: 2024
Data da conclusão da obra: 2025

Arquitetura e interiores: Erick Vicente

Colaboradores: Daniel Mioli e Lígia Tavares

Gerenciamento de obras: Eber Scoppetta

Marcenaria: JP Planejados / Ademir Ponvequi

Brises: Arkos

 

español

 

La construcción de la nueva sede de Oral Clinic Implantes, una empresa de salud bucal con base en la ciudad de Osasco, SP, partió de la premisa de recalificar una construcción existente que estuviera ubicada en un lugar estratégico. El proyecto se centró en la reducción del impacto ambiental, la eficiencia operativa, la seguridad biológica y el confort físico y psicológico de los pacientes.

 

El proyecto se basó en tres premisas: derribar poco, utilizar sistemas industrializados para la construcción e incorporar estrategias y tecnologías para reducir el consumo energético, reduciendo consecuentemente los costos operacionales a lo largo del tiempo.

 

Otro reto fue cumplir con los requisitos de accesibilidad universal, ya que el nivel de la planta baja estaba 94 cm por encima del nivel de la acera, en el punto más bajo de la fachada frontal.

 

Se propone una organización inusual: en planta baja, en lugar de crear las zonas de recepción y espera junto a la calle, se decidió ubicarlas al fondo, dejando las consultas y zonas de apoyo más adelante. Esta decisión permitió diseñar una rampa de suave pendiente en un lado, de adelante hacia atrás, por donde anteriormente ingresaban los vehículos al garaje. Este espacio fue diseñado para ser una transición entre el exterior y el interior flanqueado por un jardín con techos altos y una cubierta translúcida, cuya estructura de sostén crea un juego de luz y sombra. La zona de recepción y espera, con techos de doble altura sigue el espacio de transición dando continuidad a las experiencias entre cuerpo y espacio, desde el ingreso hasta el mostrador de atención.

 

El acceso de los empleados, de los suministros y de la eliminación de residuos se realiza a través de otro pasillo, en el lado opuesto, también protegido por una cubierta translúcida y una estructura de pérgola.

 

Los techos translúcidos y los portones calados permiten iluminación y ventilación natural indirecta de casi todos los espacios interiores. Las mamparas y puertas de vidrio permiten que la luz se distribuya por las habitaciones y pasillos, lo que reduce la necesidad de iluminación artificial y permite que los empleados acompañen el pasar del día.

 

La creación de dos accesos independientes asegura la separación de los flujos del públicos y de servicios. A diferencia de la sede anterior, los pacientes ya no ven más llegar a los dentistas, ni la distribución de los suministros o la retirada de la basura, haciendo más eficientes las operaciones y mejorando la experiencia del usuario.

 

La planta superior alberga el comedor, el almacén, el vestuario y la administración. El área técnica descubierta también fue diseñada para ser un solárium, aumentando el espacio de descanso y socialización de los empleados.

 

El proyecto previó, luego de la construcción de las paredes perimetrales, la utilización de sistemas de construcción a seco para las cubiertas y tabiques interiores, favoreciendo la separación por etapas de la obra y la reducción del consumo de agua y generación de residuos. El edificio está equipado con generación de energía solar on-grid y sistema de aire acondicionado con autonomía para cada habitación, con activación independiente, ya que algunos de los espacios no requerirían de climatización constante, reduciendo así el consumo energético.

 

english

 

The new headquarters for Oral Clinic Implantes, a dental healthcare company from Osasco, São Paulo, was conceived with the premise of repurposing an existing building in a strategically located area. The project was guided by environmental impact reduction, operational efficiency, biosafety, and the physical and psychological comfort of patients.

 

This project was also guided by three core principles: minimizing demolition, employing industrialized construction systems, and incorporating strategies and technologies to reduce energy consumption, thereby lowering long-term operational costs.

 

Another challenge was to comply with universal accessibility standards, since the building’s ground floor was 94 cm above the sidewalk elevation at the lowest point of the main facade.

 

An unconventional layout was proposed: on the ground floor, instead of placing the reception and waiting areas adjacent to the street, they were positioned at the rear, taking the operatories and support areas to the front. This decision enabled the design of a gently inclined ramp along one side, which runs all the way from the front to the back, where a vehicle access to the garage previously existed. This space was conceived as a transition between exterior and interior. It is flanked by a garden and features a high ceiling and a translucent roof, whose supporting structure creates a light and shadow play. The reception and waiting areas, with double-height ceilings, follow this transitional space, continuing the experience between body and space, from the entrance to the service desk.

 

Access for staff, supplies, and waste disposal occurs through another corridor on the opposite side, also sheltered by a translucent roof and a pergola structure.

 

The translucent roofs and perforated gates allow for indirect natural lighting and ventilation in nearly all interior spaces. The glass partitions and doors enable light into rooms and corridors, reducing the need for artificial lighting and allowing the staff to see the passing of the day.

 

The creation of two independent access points ensures the separation of public and service flows. Unlike the previous headquarters, patients no longer see the arrival of dentists, distribution of supplies, or waste disposal, making operations more efficient and improving user experience.

 

On the upper floor are the pantry, the storage room, the locker room, and the administration. The uncovered technical area was designed to function as a solarium as well, expanding the staff’s rest and social space.

 

After the erection of the perimeter walls, the project provided for the use of dry construction systems for the roofs and interior partitions, facilitating phased construction and reducing water consumption and waste generation. The building is equipped with an on-grid solar power system and air conditioning with autonomous controls for each space, operated independently, since some areas do not require constant climate control, thereby reducing energy consumption.

#clinicaodontologica #odontologia #arquiteturahospitalar #arquiteturaparaasaude #arquiteturasustentavel #estruturametalica #arquiteturacontemporanea #arquiteturabrasileira
Data:
Voltar ao topo