trails school sumaré

Trails School – unidade Sumaré

Projeto indicado como Obra do Ano pelo portal Archdaily Brasil em 2025
Projeto indicado ao 2º Prêmio Projeto de Arquitetura, promovido pela Revista Projeto, em setembro de 2025

o palacete do Sumaré

O Palacete da Rua Alfonso Bovero se tornou, ao longo dos anos, uma lenda no bairro do Sumaré. Construído pelos irmãos Karman, como um dos primeiros investimentos imobiliários da família no bairro, a construção incorporava diversas facilidades incomuns para à época, como sistema de calefação central, água quente na cozinha (além dos banheiros) e um mirante em forma de torre circular, que permitia uma vista de quase 360° do território, local que possibilitava avistar o vale onde corria o Córrego do Sumaré, onde hoje se localiza a Av. Sumaré, e parte do vale por onde corria o Córrego Verde I, que ladeava o bairro da Vila Madalena. Um desaguava no Rio Tietê e outro no Rio Pinheiros.

 

O projeto foi publicado na Revista Acrópole, nº 54, em outubro de 1942, uma das mais importantes na área de Arquitetura, Urbanismo e Construção do país.

 

A casa, que aparenta ter tido mais de um dono, em determinado momento foi alugada por um grupo escolar tradicional do bairro, que fez diversas modificações físicas, algumas irreparáveis. A construção foi ampliada à exaustão para atender as necessidades escolares, como a criação de mais salas, pátio livre para recreações e uma quadra poliesportiva coberta. Praticamente, quase todo o lote foi ocupado.

Porém, uma das intervenções mais agressivas foi o ocultamento total de sua arquitetura, por outdoors e tapumes que levavam a comunicação colorida da escola. Não se podia ver nada do antigo palacete, cuja localização foi caindo no esquecimento dos moradores do bairro.

 

Em 2021 o imóvel ficou vago e outro grupo escolar, também tradicional no bairro, decidiu alugar e ocupar a antiga escola para implantar o programa de ensino fundamental I, pois possuíam apenas o berçário e o programa de educação infantil (pré-escola). A decisão teve como base a ideia de que, para adequar as necessidades atuais de acessibilidade e segurança contra incêndio – aparentemente – seria preciso pouco investimento.

 

Na primeira visita ao local, descobriu-se que ali estava o palacete construído pelos irmãos Karman, que havia ganhado a alcunha de “castelinho da Av. Sumaré” ao longo dos anos, antes de desaparecer sob os tapumes.

 

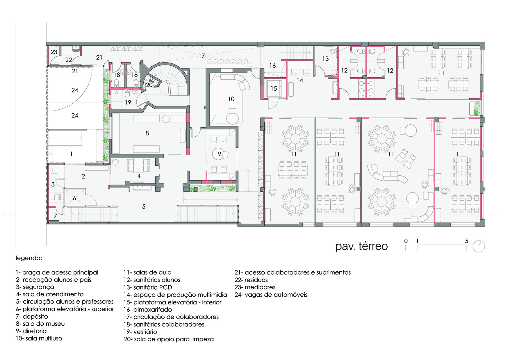
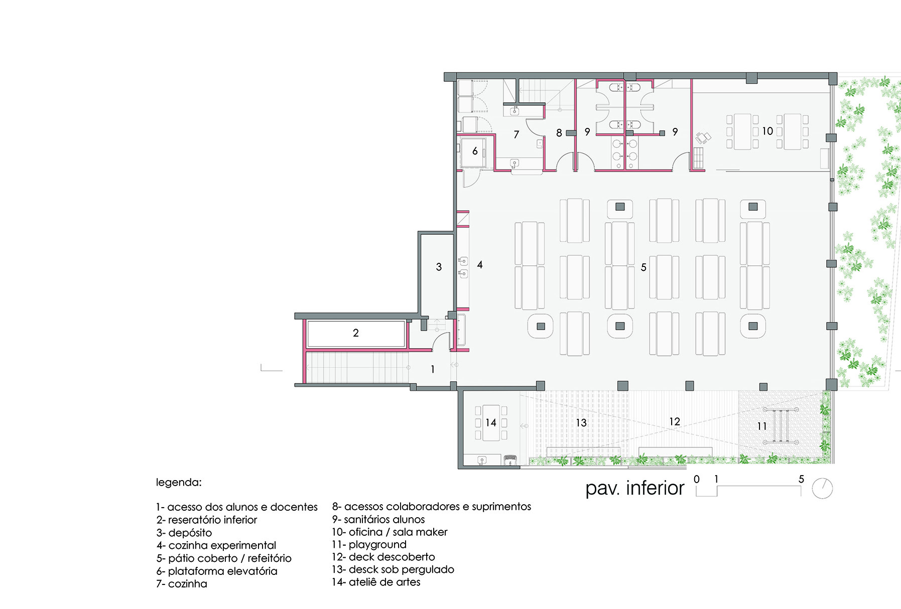
O projeto partiu da análise dos espaços, formas e elementos que não haviam sido demolidos e que poderiam ser restaurados. Durante a pesquisa, percebeu-se que, na área externa, somente parte do segundo pavimento e o mirante encontravam-se relativamente em bom estado, preservando o desenho original. Internamente a antiga sala de estar, com as vigas de madeira originais, e a bela escada helicoidal entre o térreo e o 1º pavimento (o trecho entre o 1º pavimento e o mirante havia sido demolido) possuíam condições de restauro. Diante disso, para atender o programa de necessidades, decidiu-se pela criação de novos volumes nas bordas da antiga construção, de forma a revelar os volumes que haviam mantido o desenho original, enquadrando-os.

 

A materialidade escolhida, estrutura e fechamentos compostos por tubos metálicos de diferentes tamanhos, teve como princípio criar volumes homogêneos que contrastassem com as partes originais restauradas, criando um diálogo entre o passado e o presente.

 

Foi possível modernizar completamente a escola, dar acessibilidade a todos os níveis, dotá-la da segurança adequada contra incêndio e implantar as mais modernas tecnologias relacionadas ao ensino.

 

Durante o dia, os portões, ao serem abertos, se incorporam aos volumes e elementos da fachada, fazendo com que sejam imperceptíveis. Durante a noite, os portões se fecham, mantendo a permeabilidade visual para os vestígios do belo palacete da década de 1940.

 

áreas

Área do terreno: 545,65m²
Área construída: 1.265,94m²
Capacidade total de alunos: 125

 

ficha técnica

Projeto: Trails School – unidade Sumaré
Local: São Paulo – SP – Brasil
Data do projeto: 2022
Data da conclusão da obra: 2023
Arquitetura e interiores: Erick Vicente e Fábio Burgos
Paisagismo: Fernanda Ruggeri Savietto
Gerenciamento de Obras: Fernando Machado
Estrutura: R.C.M. SERRALHERIA
Mobiliário: Novidário
Fotografias: Manuel Sá

 

Tour 360°

 

https://360vila.com/tour/trailsschool/

 

Publicações

Archdaily Brasil

https://www.archdaily.com.br/br/1015004/escola-trails-school-erick-vicente-plus-fabio-burgos

Revista Projeto

https://revistaprojeto.com.br/acervo/eam-estudio-de-arquitetura-mutavel-trails-school-sao-paulo-sp/

Página @revistaprojeto
https://www.instagram.com/p/C8FwUGuJOys/?img_index=1

Revista AU

https://revistaau.com.br/edicao/344/

Página @ portalpiniweb

https://www.instagram.com/p/C6EOtmtAR_f/

Site São Paulo Antiga

A casa escondida da Avenida Alfonso Bovero

Página @saopauloantiga

https://www.instagram.com/p/C3nQt6ZOojR/?img_index=1

Página @perdizes_digital

https://www.instagram.com/p/Cj7xrKTuSWp/?img_index=1

 

#arquiteturaescolar #arquiteturasustentavel #estruturametalica #arquiteturacontemporanea #arquiteturabrasileira #aquarelaencantada #aquarelascholl #trailsschool
Data:
Voltar ao topo