hospital universitário da USCS

patrimônio cultural e assistência hospitalar contemporânea

O Hospital São Caetano foi construído na década de 1950 pela Sociedade Beneficente Hospitalar São Caetano. A instituição operou até o ano de 2010, quando encerrou as atividades e a propriedade do edifício passou para a Prefeitura Municipal.

 

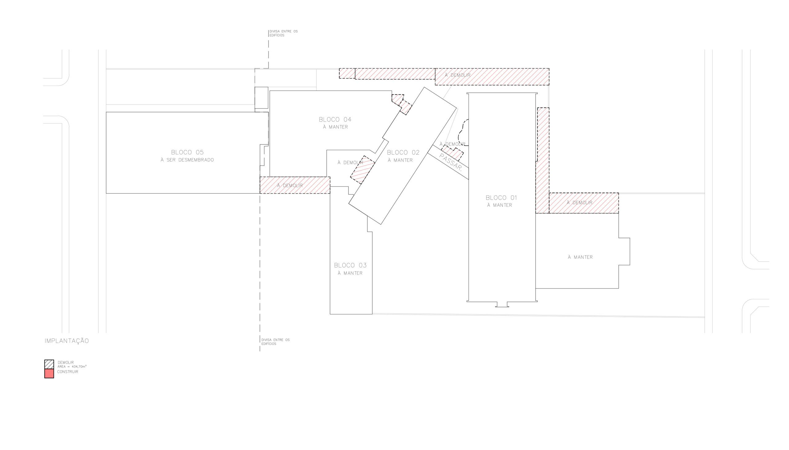
O conjunto arquitetônico é formado por edifícios construídos em diferentes períodos. O primeiro, em estilo protomoderno, possui quatro pavimentos. A primeira ampliação foi realizada com uma torre vertical laminar de sete pavimento e um bloco horizontal de dois pavimentos, ambos em estilo moderno. Depois, uma série de pequenas ampliações foram executadas, o que acabou descaracterizando a arquitetura dos primeiros edifícios.

 

Atualmente, o antigo hospital é formado por seis blocos, com implantações desordenadas, que se espalham pelos fundos do lote, até quase se fundirem com o edifício do Velório Municipal, dificultando a percepção dos limites entre as duas instituições.

 

A primeira ampliação é um belo exemplar da arquitetura moderna. Os arranjos formais, a materialidade e as técnicas construtivas tiveram grande importância para a composição da paisagem urbana local na segunda metade do século XX. O conjunto foi parcialmente tombado pelo Conprescs, em 2012.

 

Em 2021, após longo tempo de inatividade, a USCS – Universidade Municipal de São Caetano do Sul assumiu a gestão do espaço. Implantou um ambulatório de atendimento médico e, durante a pandemia, serviu como hospital de campanha, um dos mais importantes da região.

 

Em 2022, iniciou um plano para criar o futuro Hospital Universitário no conjunto construído, sendo que o primeiro passo foi avaliar a viabilidade para implantar novos processos e modernas técnicas e tecnologias médicas.

 

estudo de viabilidade e plano diretor

 

Para colaborar com a construção do futuro Hospital Universitário, foi desenvolvido um Estudo de Viabilidade Físico-Funcional Hospitalar. O estudo propôs a implantação faseada dos serviços assistenciais, administrativos, educacionais e de apoio. As etapas foram pensadas para permitir que o edifício fosse ocupado aos poucos, começando como uma policlínica e evoluindo para um hospital geral.

 

Dessa forma, para além do Estudo de Viabilidade, foi desenvolvido um Plano Diretor Físico Hospitalar, que guiaria as ações e os investimentos para a ocupação faseada, permitindo maior controle e organização das expansões.

 

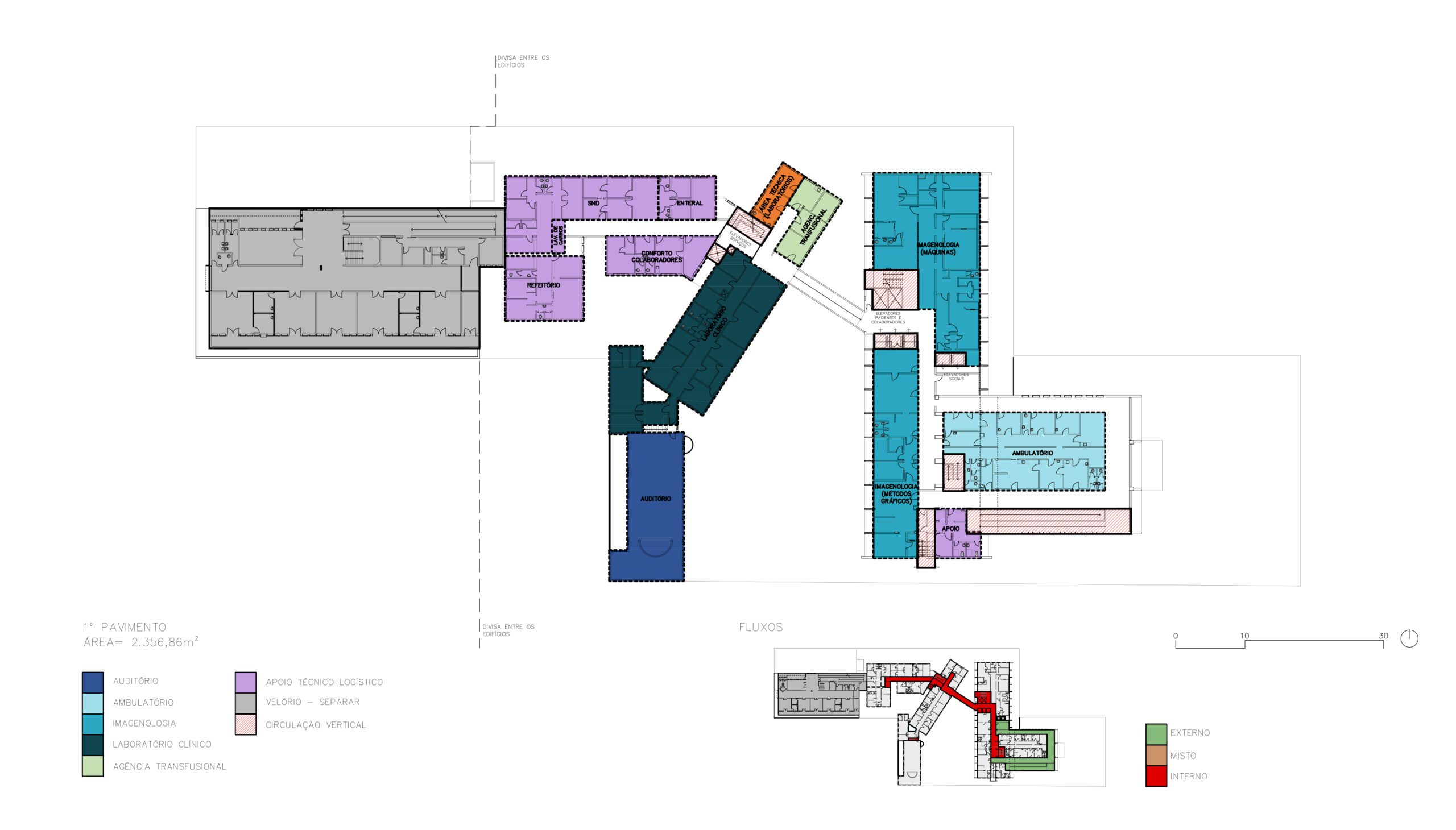
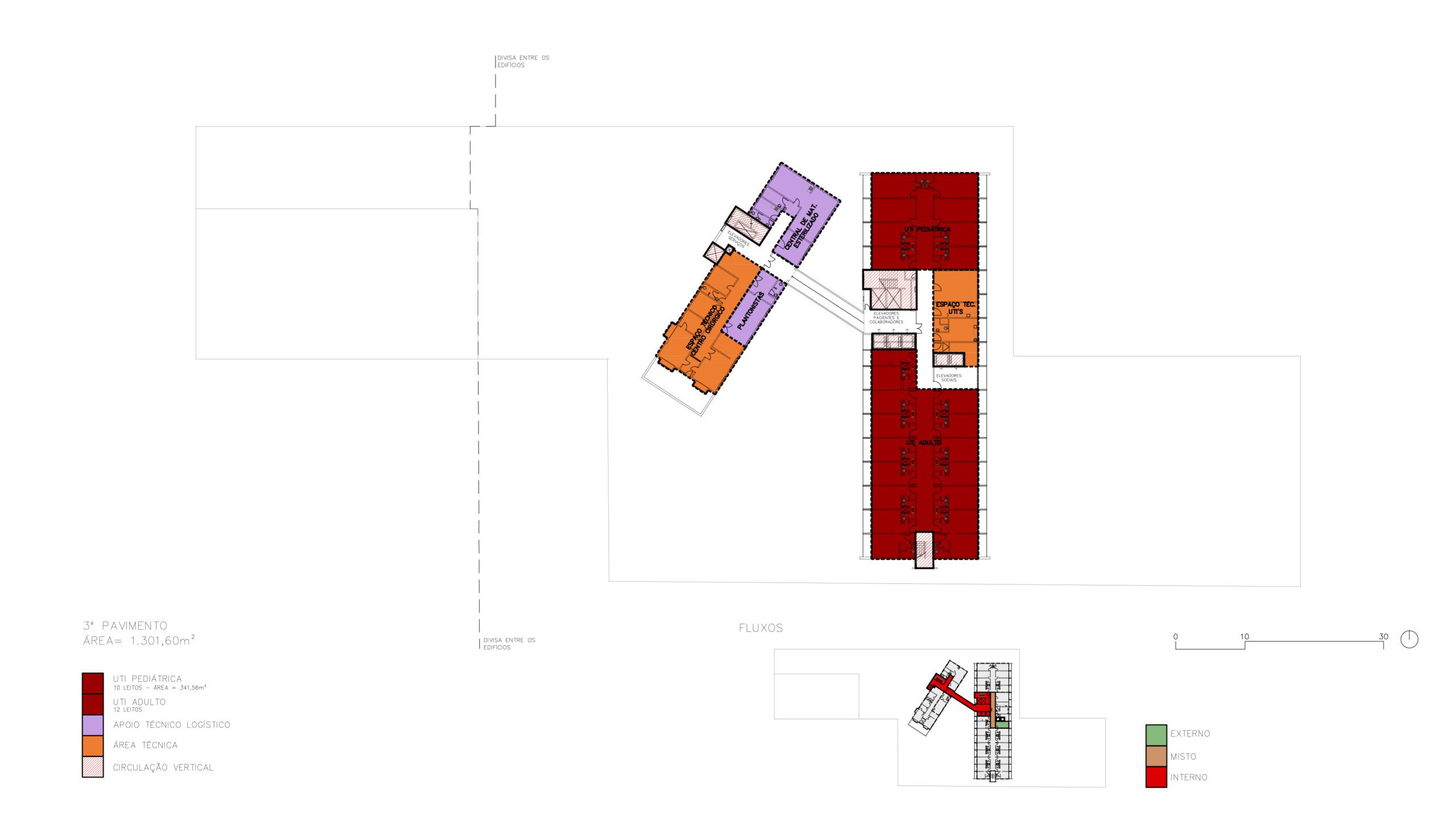
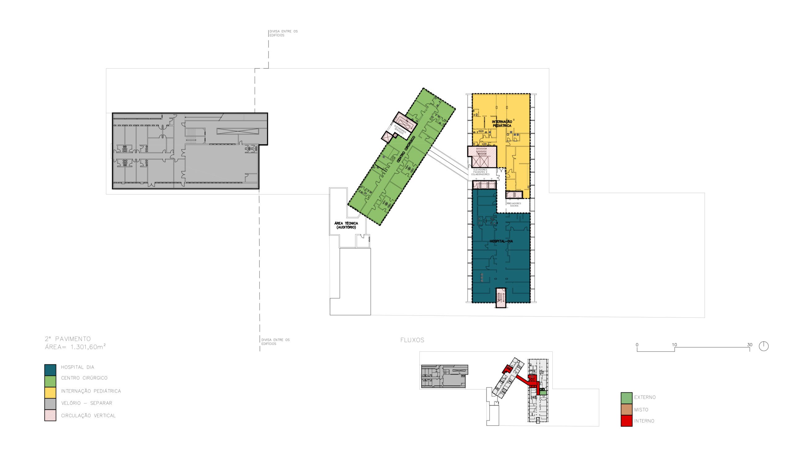
O estudo propôs um programa funcional para um hospital geral de médio-porte, com atendimento adulto e pediátrico e capacidade para 102 leitos, sendo:

 

– Internação adulto com 66 leitos
– Internação pediátrica com 14 leitos
– UTI Adulto com 12 leitos
– UTI Pediátrica com 10 leitos
– Centro Cirúrgico com 4 salas de cirurgia, sendo 2 médias e 2 pequenas
– Hospital-dia com 3 salas de procedimentos
– Centro de Diagnóstico por Imagem
– Laboratório Clínico
– Agência Transfusional
– Reabilitação Motora
– Ambulatório com 15 consultórios
– Pronto Atendimento de baixa e média complexidade
– Lanchonete para pacientes externos e visitantes
– Central de Material Esterilizado (CME)
– Serviço de Nutrição e Dietética (SND)
– Refeitório
– Almoxarifado
– Farmácia Central
– Central de Roupa Limpa
– Vestiários e conforto de colaboradores
– Administração
– Auditório
– Salas de aula
– Espaço de Apoio Pedagógico
– Biblioteca
– Manutenção Predial
– Engenharia Clínica
– Necrotério / Morgue
– Central de Roupa Suja
– Central de Resíduos
– Central de Abastecimento

 

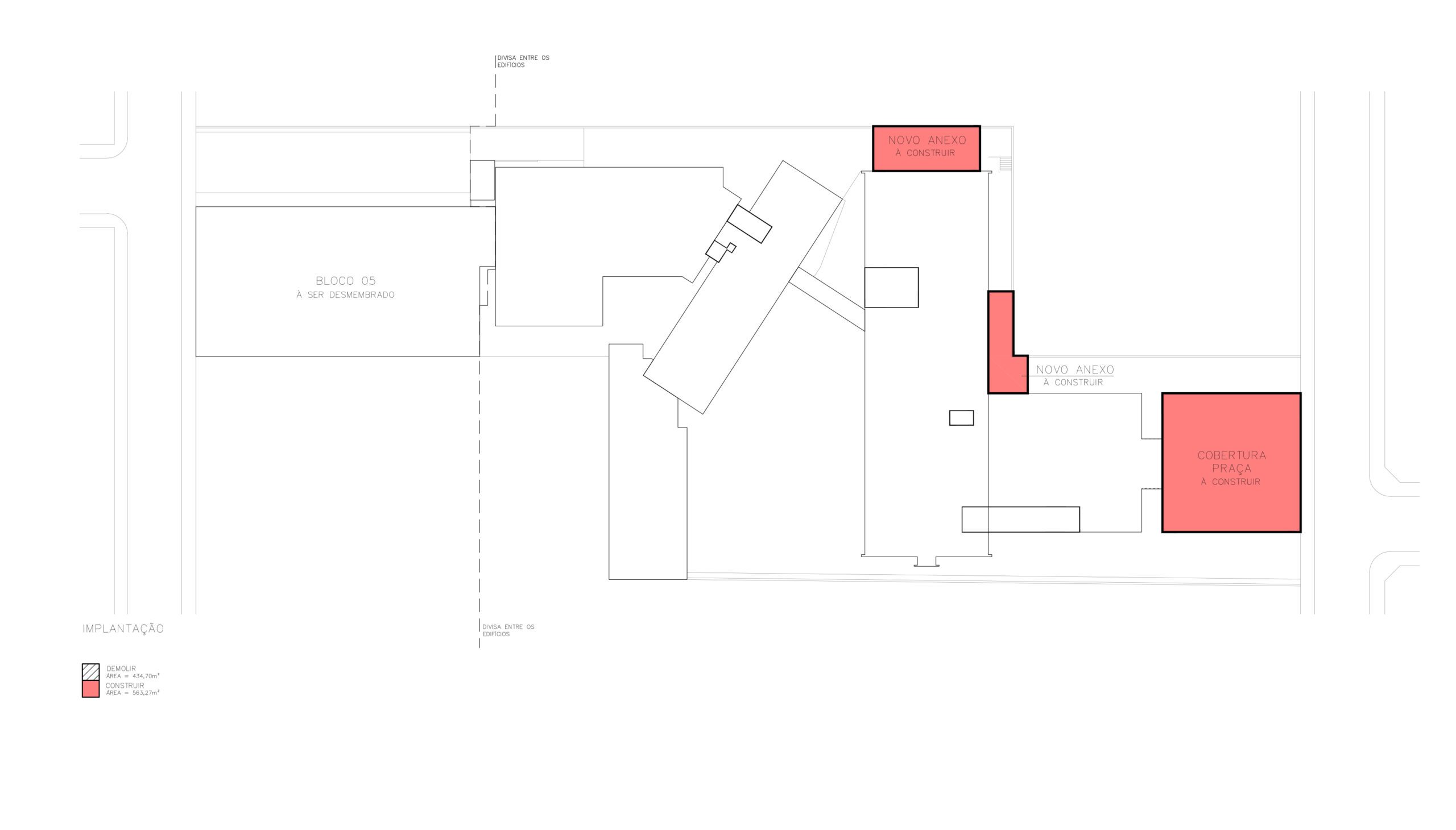
O estudo buscou preservar o máximo possível da construção existente. Os edifícios tombados teriam a estrutura e as fachadas recuperadas, os blocos maiores no fundo do lote seriam totalmente reformados, pequenos anexos seriam demolidos e poucas e pequenas adições seriam feitas, como uma praça coberta de acolhimento, marquises para as docas de carga-e-descarga e uma nova central de abastecimento.

 

O bloco central e o volume frontal, correspondentes a primeira expansão, por terem sido originalmente construídos para serem um hospital, apresentavam melhores condições espaciais para a implantação dos serviços de saúde. Portanto, abrigaria o atendimento ambulatorial, as internações, parte do apoio ao diagnóstico e terapia e a administração. O bloco intermediário, localizado mais ao centro do lote e que corresponde ao primeiro edifício construído, por ter menor capacidade de alteração de seus espaços físicos, abrigaria a outra parte do apoio ao diagnóstico e terapia, além das atividades de ensino e pesquisa. O bloco posterior, por ter acesso independente pela Rua Rio Grande do Sul (posterior ao acesso principal), abrigaria os apoios técnicos e logísticos.

 

O bloco onde atualmente se localiza a capela seria convertido em auditório para os seminários, congressos, aulas e palestras.

 

O Plano Diretor Físico Hospitalar definiu quatro etapas para a ocupação do edifício, sendo:

 

Etapa 01: implantação dos serviços de pronto atendimento (com outro hospital referenciado para receber os pacientes que necessitassem de internação e procedimentos complexos), atendimento ambulatorial, reabilitação motora, administração, espaços de ensino e pesquisa, apoio técnico-logístico, conforto de colaboradores e áreas de acolhimento do público.

Etapa 02: implantação do Hospital-Dia (cirurgia ambulatorial), do serviço de nutrição, do laboratório clínico, da agência transfusional e do morgue/necrotério.

Etapa 03: implantação do Centro Cirúrgico, da Central de Material Esterilizado, da UTI e da primeira fase das internações.

Etapa 04: ampliação dos leitos de internação.

 

áreas livres, de convivência, de transição e a relação com a cidade

 

Mesmo não fazendo parte do escopo do Estudo de Viabilidade, assim como a definição de um Plano Diretor Físico Hospitalar, os espaços livres, cobertos e descobertos, foram pensados minuciosamente, com o objetivo de definir, desde o início, a importância deles para a qualidade do ambiente hospitalar e para a experiência dos usuários.

A demolição dos pequenos anexos possibilitaria o aumento dos espaços livres descobertos. A maior parte deles, entremeados nos blocos do interior do lote, seriam transformados em jardins de convivência e contemplação para os colaboradores, professores, estudantes e estagiários, contribuindo para a redução do estresse e da ansiedade no ambiente de trabalho e de estudos.

Outra proposta foi criar uma praça coberta e aberta para a cidade, configurada como espaço de transição. O edifício original, afastado da testada do lote, teve sua visão encoberta por um edifício residencial construído em uma porção de terreno que pertencia ao hospital, mas que foi vendido em certo momento para auxiliar nos custos operacionais. Com isso, tornou-se necessário repensar a paisagem e a relação do conjunto com o espaço público. Somado a necessidade de conferir acessibilidade ao hospital e ampliar as áreas de permanência – uma vez que a recepção principal era demasiadamente pequena considerando o novo porte hospitalar e a impossibilidade de disponibilizar mais áreas construídas para esse fim – foi sugerido uma nova frente, permeável, com espaços verdes e protegidos do sol e da chuva.

Considerando que o hospital funcionaria 24 horas, a nova praça mediaria as relações interior e exterior, oferecendo um espaço seguro, iluminado e acolhedor não somente para os pacientes, acompanhantes e visitantes, mas para todas as pessoas que transitassem pelo local.

 

ficha técnica:

projeto: Estudo de Viabilidade para o Hospital Universitário da USCS
local: Bairro Santo Antônio, São Caetano do Sul – SP
data: 10/2022
área: 11.123,73m²

 

autores:

Erick Vicente
Mario Figueroa

 

colaboradores:

Mariana Picolli
Daniel Maioli
Gustavo Bondezan
Camila Rocco
Pedro Paes

 

laudo técnico:

Thales do Valle Dutra

 

orçamentos:

Andréa Souza

 

#arquiteturahospitalar #planodiretorhospitalar #planodiretor #arquiteturaparaasaude #hospitaluniversitario #hospitalgeral #estudodeviabilidade #arquituramoderna #patrimoniomoderno #patrimoniohistorico #hospitalsaocaetano #uscs #saocaetanodosul #sus #arquitetura #projetodearquitetura #arquiteturabrasileira #arquiteturacontemporanea
Data:
Voltar ao topo